学海荡舟手机网
导航
家装常识
家装风水
流行家装
家庭装修
家装材料
家装设计
施工工艺
施工验收
主页
→
健康家居
→
家装设计
→ 详细内容
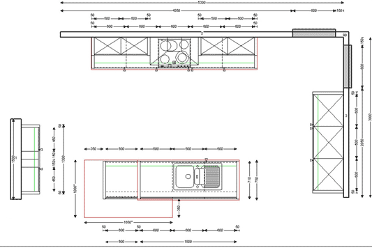
厨房设计案例(11):岛型橱柜设计 清洗用餐在岛区
厨房设计案例:岛型橱柜设计 清洗用餐在岛区
厨房设计案例:岛型橱柜设计 清洗用餐在岛区
相关文章
厨房设计案例(10):岛型橱柜设计 烹饪休闲在...
厨房设计案例(9):岛型橱柜设计 随意休闲在...
厨房设计案例(8):个性的I型橱柜设计
厨房设计案例(7):简单但功能齐全的I型橱柜...
厨房设计案例(6):U型橱柜设计
厨房设计案例(5):开放式厨房U型橱柜设计
厨房设计案例(4):开放式厨房U型橱柜设计
厨房设计案例(3):L型橱柜设计
厨房设计案例(2):利用拐角空间的L型橱柜设...
厨房设计案例(1):L型橱柜设计
厨房设计案例(12):不规则橱柜设计
厨房设计案例(13):异型橱柜设计
厨房设计案例(14):狭长型橱柜设计
不同风格的卧室装修设计 让家与众不同(图)
厨房设计案例(16):便宜实用的I型橱柜设计
厨房设计案例(15):简单实用的I型橱柜设计
厨房设计案例(17):经济实用的开放式橱柜设...
厨房设计案例(18):中档的L型橱柜设计
厨房设计案例(19):中档的U型橱柜设计
厨房设计案例(20):古典风格的L型橱柜设计
小空间大作用,巧妙设计让飘窗“飘
书房装修设计——雅、序、明、静
取舍有“道” 家庭装修吊顶别入误
电视背景墙的装修设计及流行做法
小户型房屋装修布置与设计原则
访问电脑版-家庭装修大全